首頁 > 專業人士 > 舊窗換新窗工法

舊窗換新窗工法回上一頁

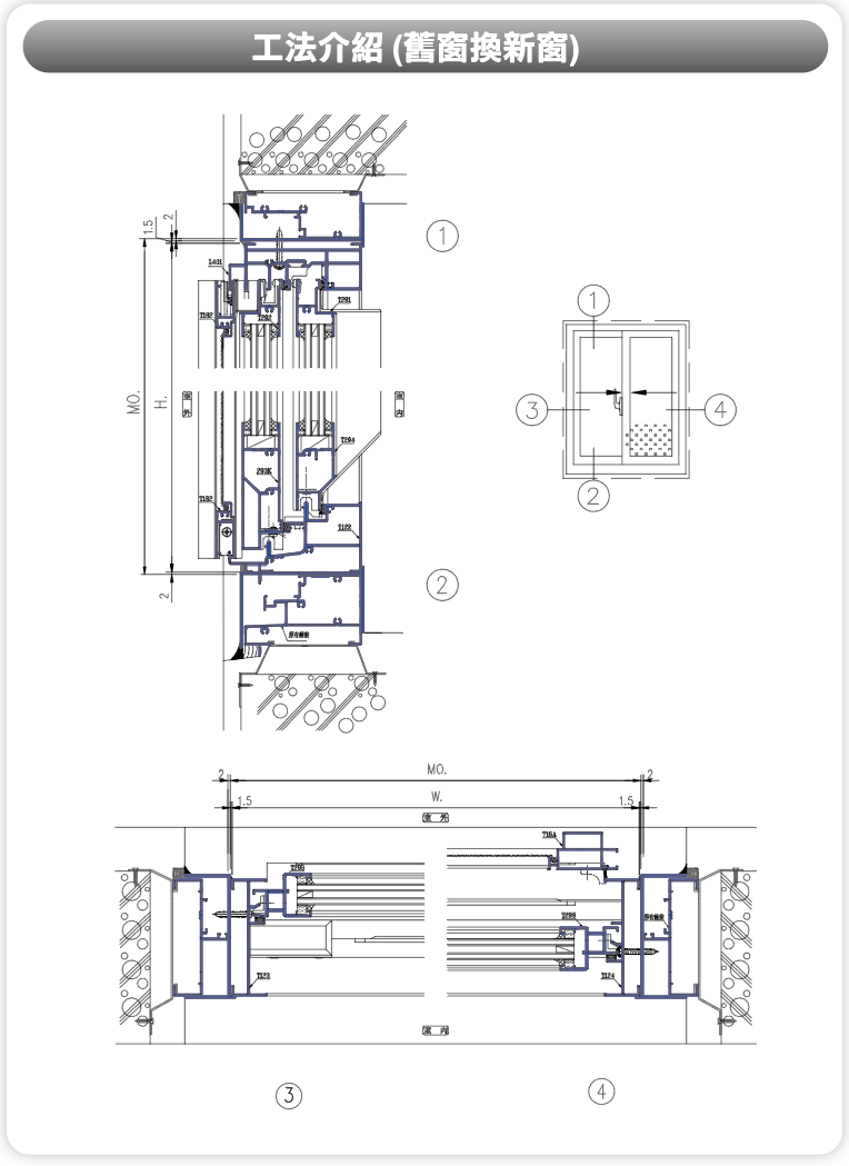
舊窗換新窗工法:

更舒適、更省能源,從您的窗戶開始。最聰明的改裝秘訣,關鍵在於挑選〝對的窗戶〞。
我們的新工法:先用覆蓋框包覆舊窗,再將新窗固定其上即可(詳圖),工法簡便、快速且可免於破壞牆體、大興土木,造成屋內
塵埃四起之困擾,此工法最適合滲水窗換裝,或普通窗換裝成隔音氣密窗,可免除拆舊窗痛苦之最佳選擇。


舊窗換新窗工法圖

品牌故事
經營理念
品牌沿革
媒體集錦
環境報告
認證/獲獎紀錄
一般消費者
step1 知識
建築相關
裝潢相關
鋁門窗相關
施工案例
step2 商品
使用區域分類
建築風格分類
線上目錄
新式手把
舊窗換新窗
step3 展示
展示間
step4 服務
安全使用須知
保養須知
電話/E-mail聯繫
商品展示
規格/配件總覽
陽台
浴室
居室
廚房
玄關
外裝
最新消息
社群討論
購買導引
聯絡我們/目錄索取
專業人士
注目情報
產品商標logo介紹
立山系列
一次框、二次窗工法
舊窗換新窗工法
庇水板工法
目錄系列
資料下載
商品分類
鋁門窗系列
鋁門窗系列
立山系列
遮陽板系列
格柵系列
帷幕牆
帷幕牆系列
天棚系列
力霸彩衣系列
氟碳烤漆
粉體塗裝
商品展示
鋁門窗系列
立山系列
遮陽板系列
格柵系列
帷幕牆系列
天棚系列
氟碳烤漆
粉體塗裝
協力廠/經銷商
技術分享
原廠證明書
聯絡我們/目錄索取